Lote con mejoras en tortuguitas

Viena 600, Malvinas Argentinas

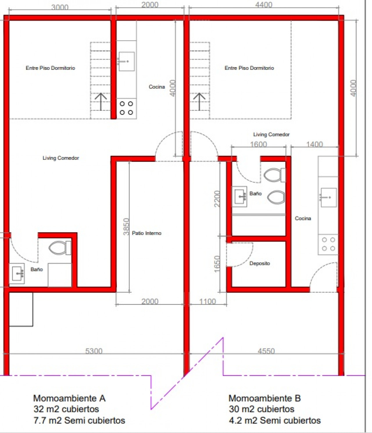
Lote con mejoras de 10x30 en Tortuguitas a 400 metros de la ex ruta 8 y a 200 metros de la Avenida Buenos Aires. Cuenta con dos departamentos de dos ambientes cada uno con entretecho de madera de 30m2 cada uno. zonificación R4- 240m2 superficie edificable. ---------------------------------------------------------------------------En cumplimiento de las leyes provinciales vigentes que regulan el corretaje inmobiliario, Ley Nacional 25.028, Ley provincial 10.973 con su modificaciones, las normas del Código Civil y Comercial de la Nación y Constitucionales, los agentes NO ejercen el corretaje inmobiliario. Todas las operaciones inmobiliarias son objeto de intermediación y conclusión por parte de los martilleros/as y corredores/as colegiados/as. ----------NOTA: La información gráfica y escrita contenida en el presente aviso es meramente a título estimativo y no forma parte de ningún tipo de documentación contractual. Las medidas y superficies definitivas surgirán del título de la propiedad del inmueble referido. Asimismo los importes de tasas, servicios y expensas indicados están sujetos a verificación. El valor del inmueble indicado puede ser modificado sin previo aviso. Operación supeditada a que el propietario cumplimente con la Reg.2371 COTI.

Más información

  • Sup. Cubierta : 62 m²
  • Sup. Semicubierta :
  • Sup. Descubierta :
  • Sup. Terreno Total : 240 m²
  • Antigüedad :
  • Pisos :
  • Habitada :

Características

  • Dormitorio
  • Cocina/Comedor Integrados
  • Baño

Ubicación

¿Alguna duda?

Póngase en contacto con nosotros y lo asesoraremos

Software Inmobiliario - Sitio Inmuebles